Nouvelle construction au coin Terrill et St-Michel. C’était un grand terrain occupé par un petit duplex. Le zonage autorise un maximum de 8 logements.
Oups…
Une douzaine de nouveaux logements sur la rue Martin
DÉVELOPPEMENT. Un projet de 12 logements et d’un rez-de-chaussée commercial sur la rue Martin a été approuvé lors du conseil municipal du 2 septembre dernier.
Merci @Soucolline pour ces mises à jour, c’est vraiment le fun de voir tous ces beaux projets se réaliser. La brique du 135 King Est a l’air pas mal, j’ai bien hâte de voir le 170 King Est en face.
Il y a eu plusieurs nouvelles intéressantes dans les derniers jours, en particulier en matières de parcs et d’art public.
Au lancement de campagne de Raïs Kibonge et Sherbrooke Citoyen, les grandes lignes d’un projet de parc riverain sur le site des Grandes-Fourches ont été présentées. Ce n’est pas tellement révolutionnaire dans la mesure où depuis le tout début, l’objectif avoué de la Ville est de profiter du déplacement de la rue pour faire un parc, mais c’est bien d’avoir la confirmation que c’est une priorité pour SC.
Sherbrooke Citoyen propose un parc riverain au centre-ville - Sherbrooke.info
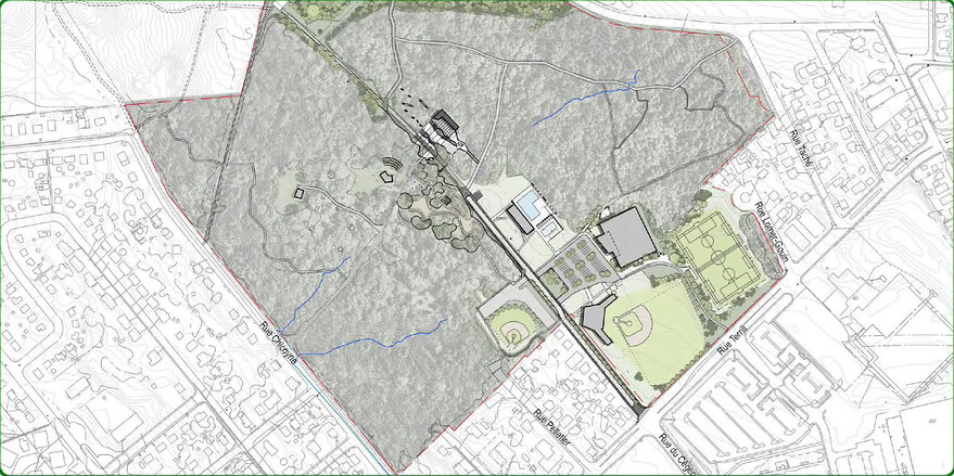
Le Plan directeur d’aménagement du parc Victoria a été déposé au Conseil municipal. Il est question notamment de transformer l’entrée du parc à partir de Terrill (pavé, végétalisation, etc.) et d’aménager une place centrale en son cœur. Le préau existant serait rénové et un nouveau pavillon viendrait s’y greffer, et il est prévu de mieux baliser les sentiers, de mettre en valeurs les vestiges du passé et de mieux connecter le parc au marais et à l’ancien dépotoir. Les travaux pourraient commencer dès 2026 si c’est approuvé. J’adore.
Une « place centrale » pourrait être aménagée au parc Victoria - Radio-Canada
Quelques captures d’écran de la présentation.
Deux nouvelles œuvres d’art ont récemment été inaugurées sur la Well.
La première, “FORTES” d’Adèle Blais, est située au niveau de la ruelle Whiting, juste en face de l’Hôtel de Ville. J’aime bien le petit côté cabinet de curiosités, et ça vient “habiller” le vieux mur de brique sans trop le cacher.
Ville de Sherbrooke
La seconde, “Trajectoire” d’Amélie Pomerleau, est installée dans la plate-bande à l’avant de la place Kassiwi (Well Sud). La combinaison bronze-pierre-métal ondulé est très cool, c’est vraiment la cerise sur le sundae.
Ville de Sherbrooke
Personnellement, je suis contre l’aménagement au parc Victoria. Ce qui fait le charme de ce parc, c’est justement le fait que c’est un espace naturel. Le béton n’a pas sa place dans ce parc. Il n’est pas nécessaire d’aménager tout nos parc comme on l’a fait avec la promenade du Lac des Nations.
Mon intérêt pour ce parc, c’est justement parce que c’est peu aménagé j’espère qu’ils conserveront l’aspect “nature” des espace actuels. (la partie de l’ancien zoo)
Est-ce qu’on regarde bien le même projet? Parce que moi, ce que je vois, c’est une éradication massive de l’asphalte dans le périmètre du parc. L’amincissement de la rue du Cégep et l’élimination de la grande boucle et de la rue Desaulniers, tout ça est remplacé par du pavé (oui, probablement en méchant béton), mais aussi en grande partie par de la végétation. La perte d’un peu de gazon pour l’aménagement de la petite place devant le préau n’est même pas proche d’annuler toute cette déminéralisation.
Alors oui, je serais ravi que la nouvelle rue du Cégep et cette éventuelle place publique ressemblent à la promenade du Lac des nations, il n’y a pas un seul univers parallèle dans lequel ce serait moins beau, moins agréable et, surtout, moins naturel que le car-centric hellscape – OK je pousse un peu – tout asphalté qu’on a en ce moment.
Et pour le reste du parc, il ne semble pas du tout être question de le rendre moins naturel, au contraire. Pour autant qu’on sache, il n’y a pas de changements majeurs de prévus, et rien qui irait dans le sens d’une artificialisation accrue. En balisant mieux les sentiers et en aménageant des sections sur pilotis, ça risque d’abord et avant tout de réduire le piétinement et de laisser le tapis forestier prendre un aspect le plus naturel possible.
Bref, je n’y vois vraiment que du positif.
—————
Un nouveau rendu apparait maintenant sur le site de l’UTILE, et le projet s’appelle désormais “UTILE Pacifique.” L’évolution du projet est quand même assez remarquable. Alors qu’on parlait en 2023 de 75 ou 100 appartements pour un budget de 25 ou 28 M$, il est maintenant question de 180 unités (depuis fin 2024), pour un total de 58,9 M$. J’ai l’impression que les rendus qu’on avait vus précédemment correspondaient déjà à la version boostée, et que le design a finalement été revu pour apaiser le fameux appétit de la Ville pour la brique rouge…
www.utile.org
L’ancienne version
www.utile.org
ici.radio-canada.ca
Le CCU central a refusé la démolition d’une des ruines qui auraient dû être démolies pour permettre le projet, ce qui signe probablement son arrêt de mort.
Dans la même séance, le CCU a aussi refusé la démolition du 201-211 Wellington Sud, qui été demandée dans le cadre d’un projet de 100 logements sur 10 étages, première phase d’un projet de plus de 300 logements (qui meurt du même coup). Citations notables de Mme La Roche, présidente du CCU central et de la CAT, pendant cette séance : “[Les] logements dans l’immeuble actuel (5 unités) sont plus abordables que ceux qui auraient été construits (300 unités)” et “Est-ce que le besoin est vraiment de bâtir des logements à tout prix?”.
En outre, on découvre dans cette séance un projet multiusage de 56 logements sur 5 étages (commerces au RDC) [coin Galt-Univsersité] : (Google Maps)
On mentionne aussi d’un 12 logements sur 4 étages sur De l’Esplanade et un projet important sur le terrain du 336 Ball (là où il y a eu le double meurtre l’autre jour), entre autres.
Ça ressemble plus à du NIMBYism qu’à d’autre chose. Ce bâtiment là sur Wellington, il a eu de meilleurs jours. C’est assez clair qu’il aurait de besoin d’une rénovation majeure. Il n’y a pas un entrepreneur qui va se lancer là dedans sans être assuré de faire des profits. Ça voudrait dire une augmentation de loyer.
L’excuse que les loyers dans ce bâtiment sont plus abordable ne tient que seulement si le bâtiment est laissé dans son état actuel. Bref, le comité dit très clairement qu’ils ne veulent pas que le site soit redévelopper avec cette excuse finement voilé.
Après ça, on se demande pourquoi autant de bâtiment finissent par être plus ou moins abandonné par les propriétaires jusqu’à ce qu’ils soient en état de détérioration avancé. Pour rénover, ou reconstruire à neuf, ça prend une augmentation de loyer.
Le 132 Sanborn est officiellement considéré comme ayant une “bonne” valeur patrimoniale (cote B).
Y’a aussi le 557 Bowen Sud (cote A, c’est-à-dire valeur patrimoniale “exceptionnelle”) où le zonage permettrait 18 logements, si le projet du promoteur qui détient le site recevait le feu vert (aux dernières nouvelles, ce n’est pas le cas).
Le gros avantage de développer des terrains sans devoir passer par le comité de démolition, c’est qu’ils n’ont pas leur mot à dire sur le revêtement…
(Je te laisse lire entre les lignes ;))
Partagé par Nikolai Ray sur Facebook. Quelqu’un voit où ça peut être? Ce serait un quarante logements en remplacement d’un duplexe, au 251 d’une rue en pente qui a l’air d’un cul-de-sac… Espérons que la brique aura vraiment l’air de ça, ce serait super.
Nikolai Ray, Facebook
Ça ressemble beaucoup au 217 McManamy (qu’il avait acquis l’an dernier il me semble), mais l’adresse évidemment ne fit pas…
Je suis sûr à 99% que c’est au 215 McManamy. Les chiffres inversés sont sûrement une feinte…
(Je pourrais demander, et on saurait avec certitude…)
Ça fait beaucoup de sens. Le lot appartient justement à une compagnie dont un des administrateurs est Nikolai Ray.
EDIT · Le projet est affiché avec l’adresse sur le site web du promoteur.
^ Lol, c’est… très optimiste, tout ça. (On pourrait même parler de “bluff” sans exagérer.)
1 Well Sud / 120 King O : présentement sur la table à dessin. Aux dernières nouvelles, la Ville exigeait la conservation de la tour du 120 King O, ce qui est vraiment problématique (à la Ville, ils s’en foutent… ils n’ont pas de solutions à proposer… ce n’est pas leur problème…) Bon, j’avoue que je suis sûr que ce qui va être proposé sera très beau, un “statement” comme Nik l’a lui-même dit, un immeuble “signature”… mais on est loin de la première pelletée de terre.
116-132 Sanborn : la Ville a refusé la démolition aux dernières nouvelles, alors c’est encore au stade des analyses pour tenter de leur démontrer que les immeubles sont irrécupérables. Juste pour vous donner une idée du contexte du moment : tel que citée plus tôt dans ce thread, Geneviève La Roche semble officiellement préférer 5 vieux logements abordables que les 300 logements neufs de Sherplex …
332 Ball : aucun projet de présenté aux dernières nouvelles, juste une volonté ouverte de se débarrasser de l’immeuble actuel éventuellement (il n’a pas une grande valeur patrimoniale, et tout est tout croche là-dedans anyway…)
340 King / coin Camirand (ex-Charlie) : encore en négo avec les voisins, y’a des obstacles au projet qui avait été présenté par Beaudette et McNamara. Encore loin d’avoir un projet concret pour le site, encore moins la première pelletée de terre.
215 McManamy : j’avoue que celui-là a atteint le stade de la conception, ET le duplex vacant ne devrait pas être si difficile à démolir.
C’est sûrement le premier de tous ceux de ma liste qu’on va voir construire!
Totalement d’accord avec toi, c’est un superbe immeuble, ça. Dommage qu’il soit (si on a raison pour l’emplacement) aussi hors de vue que ça (cul-de-sac de l’extrémité est de McManamy, où personne ne passe jamais…)
J’étais chez Tremblay, le cordonnier localisé juste à coté il n’y a pas si longtemps de ça, et deux autres personnes qui semblait être des gens d’affaires discutait justement du Charlie. J’ai rien de concret à rapporter sur le sujet, mais c’est assez clair qu’il y a de l’intérêt pour ce terrain.
C’était peut-être moi, je suis passé dernièrement chercher quelques paires de souliers fraîchement réparés pour ma conjointe et on a jasé de ça comme à toutes les fois que je passe le voir! (J’ai toujours été en bons termes avec le cordonnier, ayant le terrain voisin de lui côté est depuis 2006. Après le décès de sa mère (qui possédait l’immeuble), j’aurais pu l’acheter, c’était un peu trop cher pour la taille du terrain alors j’ai dit non (Nik m’en offrirait au moins le triple de nos jours).























