Le George - 45, 25 étages (2024)

Développement résidentiel comptant 664 logements et comprenant l’intégration des façades d’un édifice industriel construit en 1890.

Une deuxième phase est également prévue et comprend 227 logements abordables.

Phase 1 - 45 étages (2024)

Ancien nom: Centra condos - 1000 de la Montagne
Emplacement: 975 Lucien L’Allier
Hauteur: 45 étages - 149 mètres
Architecte: Geiger Huot
Promoteur: Omnia
Début et fin de la construction:
Dates importantes:

  • 2019-02-28: Permis de construction

Autres informations:

  • Intégration de la façade de l’édifice au 947 Lucien L’Allier
  • 664 condominiums

Sources des informations: http://centracondos.com/


Autres images:


EN PLANIFICATION

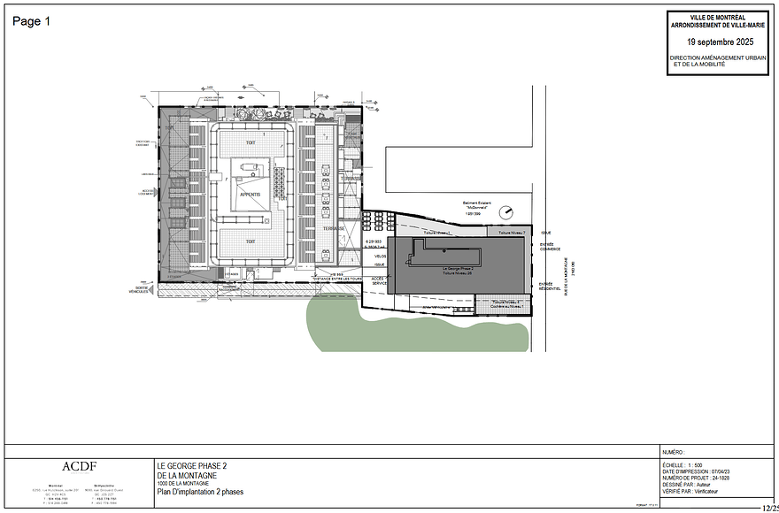
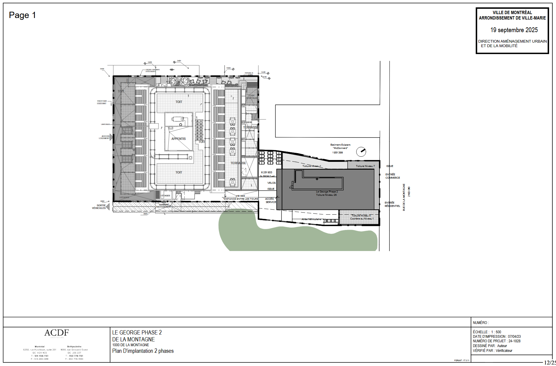
Phase 2 - 25 étages

Emplacement: 1000 de la Montagne - 1001, rue Lucien-L’Allier - Lot 6 251 933
Hauteur: 25 étages - 77 mètres
Architecte: acdf
Promoteur: Omnia
Début et fin de la construction:
Dates importantes:

  • 2025-09-30: Adoption de la première résolution (article 93)

Autres informations:

  • 227 logements abordables

Sources des informations:


Autres images:

Implémentation:

Avis favorable du CCU (en images)





Ancienne version - 2014

Architecte : ACDF
Hauteur : 26, 41 étages

Images:

Ancienne version - 2016

Architecte : ACDF
Hauteur : 25, 42 étages

Images:

4 « J'aime »

J’suis très intrigué par le résultat final de ce projet. Nouvelle forme.

vanylapep a dit : J’suis très intrigué par le résultat final de ce projet. Nouvelle forme.

Moi aussi. Étonnant pour une firme comme Geiger Huot.
Toutefois, j’appréhende une tour TRÈS massive. Les rendus sont trompeurs sur la hauteur moins importante qu’illustrée, et l’empreinte au sol est importante. On parle également de 650 unités sur 140m VS 500 unités sur 200m pour le 1 Square Phillips.
On verra. Le résultat peut-être intéressant.

En effet, le rendu côté De La Montagne montre une insertion rectangulaire que je n’avais jamais remarqué encore. Je me demande si ce sera le cas cas aussi côté Ouest. Ce serait intéressant, pour amoindrir la masse de la façade, qui risque d’être très imposante dans le panorama.

Archie a dit : En effet, le rendu côté De La Montagne montre une insertion rectangulaire que je n’avais jamais remarqué encore. Je me demande si ce sera le cas cas aussi côté Ouest. Ce serait intéressant, pour amoindrir la masse de la façade, qui risque d’être très imposante dans le panorama.

Je ne crois pas. Dans leur vidéo promotionnelle, on voit bien l’insertion à l’est, mais elle est inexistante à l’ouest :
Image: https://discussion-montreal.com/uploads/editor/sg/ia4mjkvlo1qn.jpg

Alex514 a dit :

Archie a dit : En effet, le rendu côté De La Montagne montre une insertion rectangulaire que je n’avais jamais remarqué encore. Je me demande si ce sera le cas cas aussi côté Ouest. Ce serait intéressant, pour amoindrir la masse de la façade, qui risque d’être très imposante dans le panorama.

Je ne crois pas. Dans leur vidéo promotionnelle, on voit bien l’insertion à l’est, mais elle est inexistante à l’ouest :

En effet je viens de vérifier sur les plans d’unités sur leur site, et la vignette dans le coin haut droit montre que cette insertion est seulement côté Est.

Dommage.

Alex514 said:

vanylapep a dit : J’suis très intrigué par le résultat final de ce projet. Nouvelle forme.

Moi aussi. Étonnant pour une firme comme Geiger Huot.
Toutefois, j’appréhende une tour TRÈS massive. Les rendus sont trompeurs sur la hauteur moins importante qu’illustrée, et l’empreinte au sol est importante. On parle également de 650 unités sur 140m VS 500 unités sur 200m pour le 1 Square Phillips.
On verra. Le résultat peut-être intéressant.

Le 1SP, les condos commencent a quelle étage comparé au Centra? C’est peut être ça la différence. Et aussi, ça dépend du pi2 des unités. Mais 140m et il est plus haut que la TDC1 dans la vidéo lol.

vanylapep a dit :

Alex514 said:

vanylapep a dit : J’suis très intrigué par le résultat final de ce projet. Nouvelle forme.

Moi aussi. Étonnant pour une firme comme Geiger Huot.
Toutefois, j’appréhende une tour TRÈS massive. Les rendus sont trompeurs sur la hauteur moins importante qu’illustrée, et l’empreinte au sol est importante. On parle également de 650 unités sur 140m VS 500 unités sur 200m pour le 1 Square Phillips.
On verra. Le résultat peut-être intéressant.

Le 1SP, les condos commencent a quelle étage comparé au Centra? C’est peut être ça la différence. Et aussi, ça dépend du pi2 des unités. Mais 140m et il est plus haut que la TDC1 dans la vidéo lol.

Les condos commencent au 2e étages pour le 1 SP, et au 5e pour le 1000 de la Montagne.

AJOUT : En complément, selon les plans d’implantation, je calcule rapidement que le 1SP aura une empreinte d’environ 1000 m2 au sol. En comparaison, le 1000 de la Montagne s’approche davantage des 1400 m2.

Dire que quand j’ai commencé ma carrière au 1250 R-L j’avais une vue infinie vers l’ouest. Maintenant à mon retour au bureau on verra pu rien!

2 « J'aime »

Archie said: En effet, le rendu côté De La Montagne montre une insertion rectangulaire que je n’avais jamais remarqué encore. Je me demande si ce sera le cas cas aussi côté Ouest. Ce serait intéressant, pour amoindrir la masse de la façade, qui risque d’être très imposante dans le panorama.

Cette insertion rectangulaire dont tu parles n’est pas sur leur maquette dans le bureau de ventre. Je n’ai pas de photo par contre. J’ai peur qu’ils ne l’aient tout bonnement supprimée des plans.

Xa1992 said: Dire que quand j’ai commencé ma carrière au 1250 R-L j’avais une vue infinie vers l’ouest. Maintenant à mon retour au bureau on verra pu rien!

J’ai visité le bureau de ma femme dans l’IBM-Marathon plusieurs fois au début des 90s, au vingt-quelqième étage avec une belle vue pano vers le sud et l’ouest, et la construction du Centre Molson était un spectacle en soi!

SameGuy said:

Xa1992 said: Dire que quand j’ai commencé ma carrière au 1250 R-L j’avais une vue infinie vers l’ouest. Maintenant à mon retour au bureau on verra pu rien!

J’ai visité le bureau de ma femme dans l’IBM-Marathon plusieurs fois au début des 90s, au vingt-quelqième étage avec une belle vue pano vers le sud et l’ouest, et la construction du Centre Molson était un spectacle en soi!

Comme mon pseudonyme l’indique, j’étais un peu jeune pour voir la construction du centre Molson. Je peux vous assurer par contre que j’étais aux premières loges pour la construction des TDC, de l’Avenue, de la Tour Deloitte et des Rocabellas.

1 « J'aime »

October 27th. It seems that excavation is almost done for this point of view.

10 « J'aime »

30 octobre 2020

12 « J'aime »

Wow, that is a fantastic picture

1 « J'aime »

I’m always thinking these two buildings are being built collectively ?‍♂️

1 « J'aime »

Same

1 « J'aime »

November 5th. Unfortunately the good spot for pictures on this side is now boarded up

4 « J'aime »

November 11th. Excavation is basically done

10 « J'aime »

November 16th

6 « J'aime »