La tour de logements communautaires avance bien sur la rue Parthenais. Les oeuvres d’art peintes sont super jolies. Le terrassement est complété du côté de l’ilôt 2, rue Tansley. Une belle harmonie de couleurs et de formes dans ce projet.
J’étais un peu dubitatif au départ, mais je crois que j’aime beaucoup maintenant. L’effet est entre terre cuite et acier corten.
Îlot 4
Debut de la construction sous peu. Peut-être aussitôt que la semaine prochaine. Interloge devrait occuper le basilaire.
Y Des Femmes 3e étage
Merci! C’est cool ca!
Nous avons reçu un avis de Prével ce matin, indiquant que le pieutage commencerait sous peu.
EC- Lot 4 - Communication.pdf (161,7 Ko)
Cest supposé être l’îlot du complexe sportif… hâte de voir si les plans ont changés.
Aux dernieres nouvelles le gym pour les résidents fait partie du projet.
Le basilaire devrait etre occupé par les logements d’Interloge.
Apparement le projet a passe en CCU. Quelqu’un l’avait vu passé?
C’est dans l’entête! ![]()
Communication de Prével concernant le début du pieutage.
Infos clés :
Durée des travaux : Environ 2 mois
Début prévu : Fin octobre - Début novembre
EC- Lot 4 - Communication.pdf (161,7 Ko)
On sent une forte reprise des activités immobilières en cet automne 2025 avec le début d’excavation notamment de l’îlôt 4 d’Esplanade Cartier et de la phase 2 de Canoë, par deux grands joueurs du marché, presque simultanément.
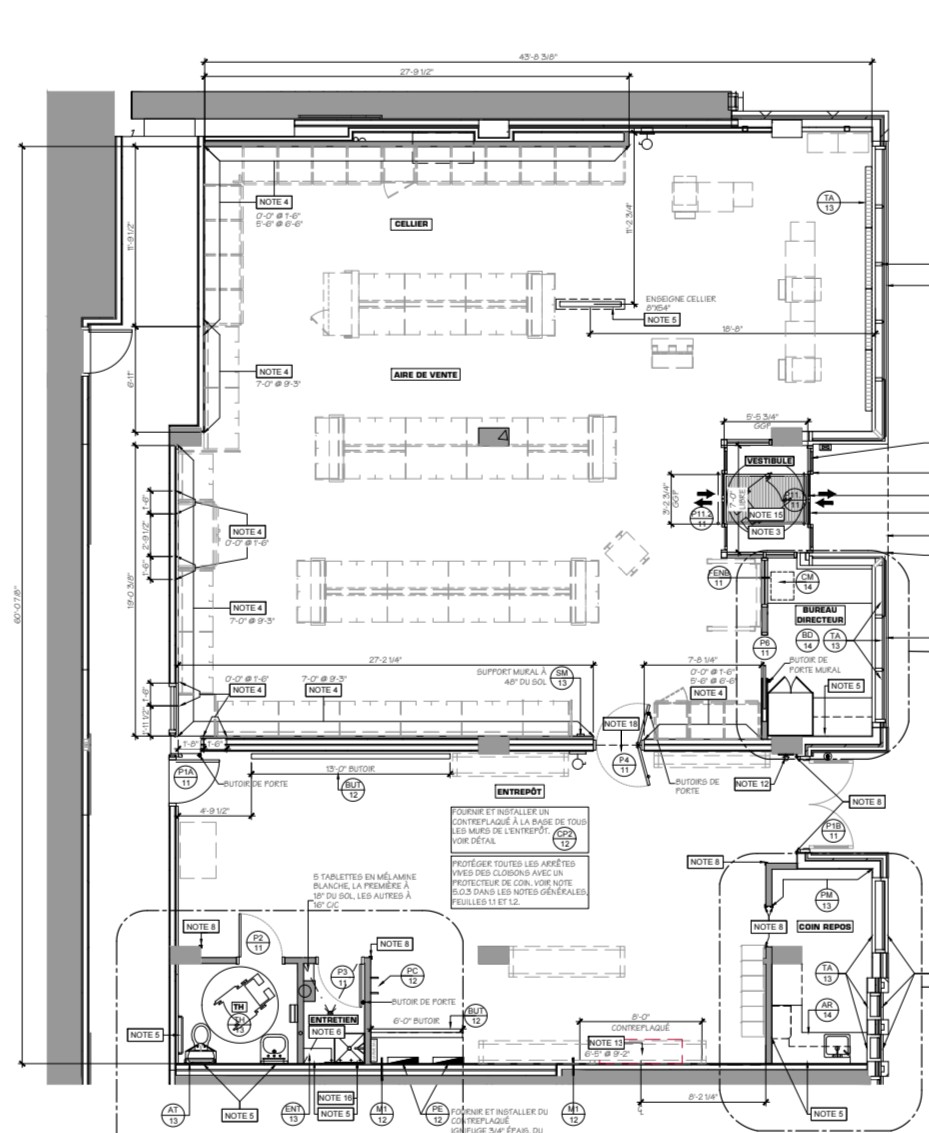
Plan d’aménagement de la SAQ dans les locaux de l’îlot 2. On voit que le local à côté de celui du Tim sera utilisé comme entrepôt et salle des employés.
Vite de même, ça me parait plus grand que la succursale du village, ça se peut?
Do we have a confirmed design / architect for block 4 yet?





























