Quartier KS Laval - 3 à 25 étages

Projet de redéveloppement en plusieurs phases et totalisant près de 4000 logements du Quartier Laval par Cominar.

Informations générales

Nom: Quartier KS Laval
Emplacement:

  • Lots 4 396 530 à 4 396 539, 4 817 715, 5 647 185 et 5 647 186 (lots projetés 6 616 045 à 6 616 051)
  • 1350 Boul. le Corbusier

Hauteur:
Architecte: DAOUST LESTAGE LIZOTTE STECKER ARCHITECTURE (plan d’ensemble
Promoteur: Cominar
Début et fin de la construction:
Dates importantes:

  • 2024-12-18 : Approbation des opérations cadastrales

Autres informations:

  • Un total de près de 4000 logements

Sources des informations:

Autres images
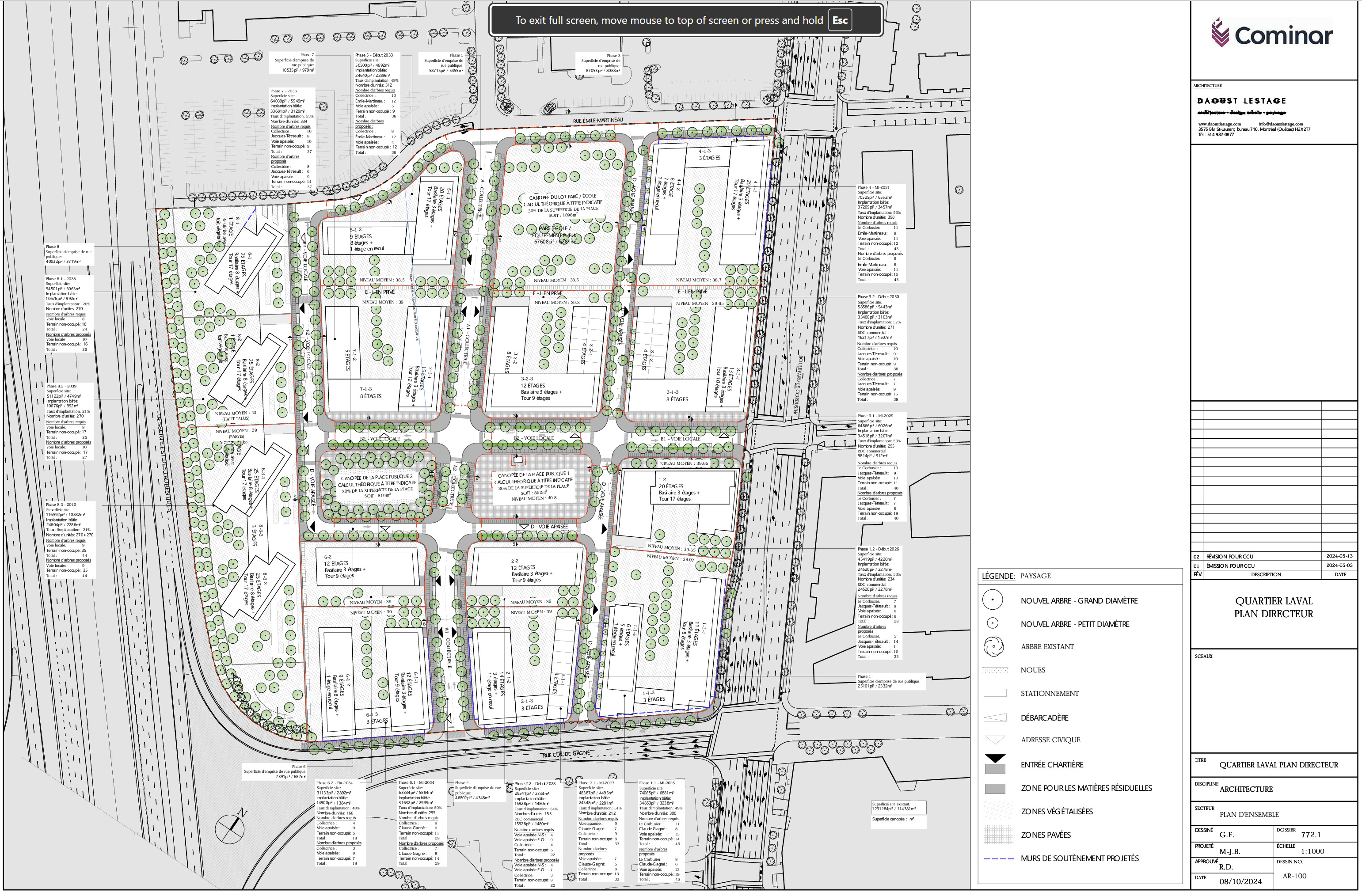
Plan détaillé du projet et phasage

Trame des rues

La trame de rue s’intègre à la trame existante et le réseau routier projeté est cohérent avec le PPU.

• Des voies cyclables réservées sont prévues le long de la rue locale et la collectrice. Sur les rues apaisées, les cyclistes et automobilistes se partageront la même emprise.
• Les principes d’implantation bâtie permettent un réseau d’itinéraires alternatifs pour les piétons et les cyclistes au travers des îlots.

Phasage


EN PLANIFICATION

Phase 1 - 11, 20 étages

Nom:
Emplacement:

  • Tour de 11 étages : Lot 6 616 046
  • Tour de 20 étages : Lot 6 616 045

Hauteur:

  • 1 bâtiment de 11 étages
  • 1 bâtiment de 20 étages

Architecte:
Début et fin de la construction:
Dates importantes:

  • 2025-10-29 : PIIA + dérogations mineures

Autres informations:

  • Un total de près de 4000 logements

Sources des informations:

14 « J'aime »

J’ai jamais compris le besoin de ce centre d’achat, espérons une reconstruction complète du secteur comme la ville semble vouloir faire avec les Galleries Laval juste à côté.

1 « J'aime »

L’article de La Presse publié en amont du Forum immobilier du 19 novembre dernier confirmait que le projet totalisera 4000 logements.

Cette capture de la modélisation présentée par le maire en novembre montre le projet de redéveloppement en bas à droite (je l’ai encadré en rouge). Il s’agit de la véritable volumétrie préliminaire du projet :

J’ai pu voir des esquisses plus détaillées du concept d’aménagement et j’ai très hâte que Cominar dévoile publiquement des rendus. C’est un redéveloppement total, qui à terme fera table rase du power centre existant. Le projet ne se colle pas à 100% à l’implantation prévue au PPU Centre-ville, mais la vision de la Ville est bien retranscrite.

Info additionnelle et potentiel indice concernant le phasage : le Dormez-vous, situé en diagonale de la Place Bell et près de la bretelle autoroutière qui sera démolie, a déjà déménagé.

12 « J'aime »

Par demande d’information, nous avons obtenu des détails sur ce projet, qui est majeur. Voici l’important, il y a d’autres documents que je vais passer en revu et bonifier ce message avec d’autres informations. Je ferai l’entête plus tard. :slight_smile:

Concept de “boucle culturelle”

Boucle culturelle
La boucle culturelle traduira la volonté de célébrer l’art, la culture et le savoir en reconnaissant la vitalité des institutions en place et à venir dans le secteur.

Par la mise en œuvre du projet Métamorphoses créatives, la vision du développement culturel du secteur se déploiera à l’intérieur d’un quartier dense, dynamique et animé qui s’imposera comme pôle culturel phare.

À cette boucle se rattachera un sentier artistique expérientiel dynamique et évolutif qui participera à l’animation et à l’identité du quartier en reliant la bibliothèque centrale, le centre de création artistique professionnelle, la Place Bell, la Maison des arts, les collèges et les universités et les espaces publics.

Description du projet

• Redéveloppement du site commercial en un projet mixte comprenant des unités résidentielles et commerciales, rationalisation du stationnement, bonification du verdissement et amélioration de la connectivité par l’aménagement de nouveaux liens.
• Construction d’environ 4 000 logements: 15 bâtiments de 3 à 25 étages
comportant entre 150 et 350 unités résidentielles avec stationnements en sous sols. Certains bâtiments incluront des rez-de-chaussée commerciaux et résidentiels.
• Espaces publics projetés incluant notamment deux places publiques pouvant accueillir les évènements de la Boucle culturelle, des parvis et un parc public pouvant potentiellement accueillir une nouvelle école dans le secteur.
• Plan d’ensemble à l’ultime prévu en 8 phases et la mise en chantier commence en juin 2025 et s’étend jusqu’en 2042.

Plan d’implémentation:

Modulation des hauteurs:

Modélisation 3D:

Phasage du projet:

Avis favorable du Service de l’urbanisme de laval:

La trame des rues:

La trame de rue s’intègre à la trame existante et le réseau routier projeté est cohérent avec le PPU.

• Des voies cyclables réservées sont prévues le long de la rue locale et la collectrice. Sur les rues apaisées, les cyclistes et automobilistes se partageront la même emprise.
• Les principes d’implantation bâtie permettent un réseau d’itinéraires alternatifs pour les piétons et les cyclistes au travers des îlots.

Plan hyper détaillé du projet:

10 « J'aime »

Quelques perspectives:

DAOUST LESTAGE LIZOTTE STECKER ARCHITECTURE

23 « J'aime »

Quelque chose est commencé?

1 « J'aime »

Non, ces documents ont été produits à la fin 2024, alors ils peuvent avoir des imprécisions sur l’échéancier.


AJOUT

J’ai mis l’essentiel pour le moment, mais l’ensemble des documents doit avoir pas loin de 500 pages.

Si vous voulez des détails sur un aspect du projet, c’est probablement là-dedans: forme des rues, ensoleillement, études acoustiques, et j’en passe… N’hésitez pas à demander. :slight_smile:

3 « J'aime »

Est-ce qu’on a la matérialité? Ça me semble très intéressant

1 « J'aime »

Il ne semble y avoir aucun plateau sportif prévu? C’est pourtant un bon moyen de prévenir la criminalité et améliorer la santé et la socialisation des résidents.
La cour d’école prévue est trop petite pour y accueillir un terrain de soccer, tennis ou baseball…

2 « J'aime »

Pas dans ces documents, l’architecture va être analysé dans d’autres demandes. Je suis curieux aussi de connaître ces matériaux.

L’architecture peut changer aussi, je crois qu’on peut considérer comme plus solide l’implémentation et l’aménagement du site.

2 « J'aime »

Super intéressant comme projet. J’ai hâte de voir l’architecture finale - j’espère qu’on aura quelque chose plus comme Esplanade Cartier…

Sinon, j’aurais préféré que les tours à l’Ouest soient en diagonale opposée en alternance - là ça donne un effet un peu copié-collé, mais c’est peut-être un choix fait pour l’ensoleillement?

1 « J'aime »

L’ensoleillement:

9 « J'aime »

Est-ce qu’on a une idée de la date de fin des baux commerciaux ?

2 « J'aime »

C’est déjà en cours, j’avais un client qu’on avait rénové son local en 2019 et il a déménagé l’année dernière, dû à se projet

2 « J'aime »

La première phase (11 et 20 étages) a obtenu ses autorisation (dérogations mineures + PIIA) à la séance du 29 octobre dernier.

Phase 1 - 11, 20 étages

Nom:
Emplacement:

  • Tour de 11 étages : Lot 6 616 046
  • Tour de 20 étages : Lot 6 616 045

Hauteur:

  • 1 bâtiment de 11 étages
  • 1 bâtiment de 20 étages

Architecte:
Début et fin de la construction:
Dates importantes:

  • 2025-10-29 : PIIA + dérogations mineures

Autres informations:

  • Un total de près de 4000 logements

Sources des informations:

https://www.laval.ca/documents/96014/

5 « J'aime »

Un point de service de la SAAQ déménage là temporairement.

1 « J'aime »