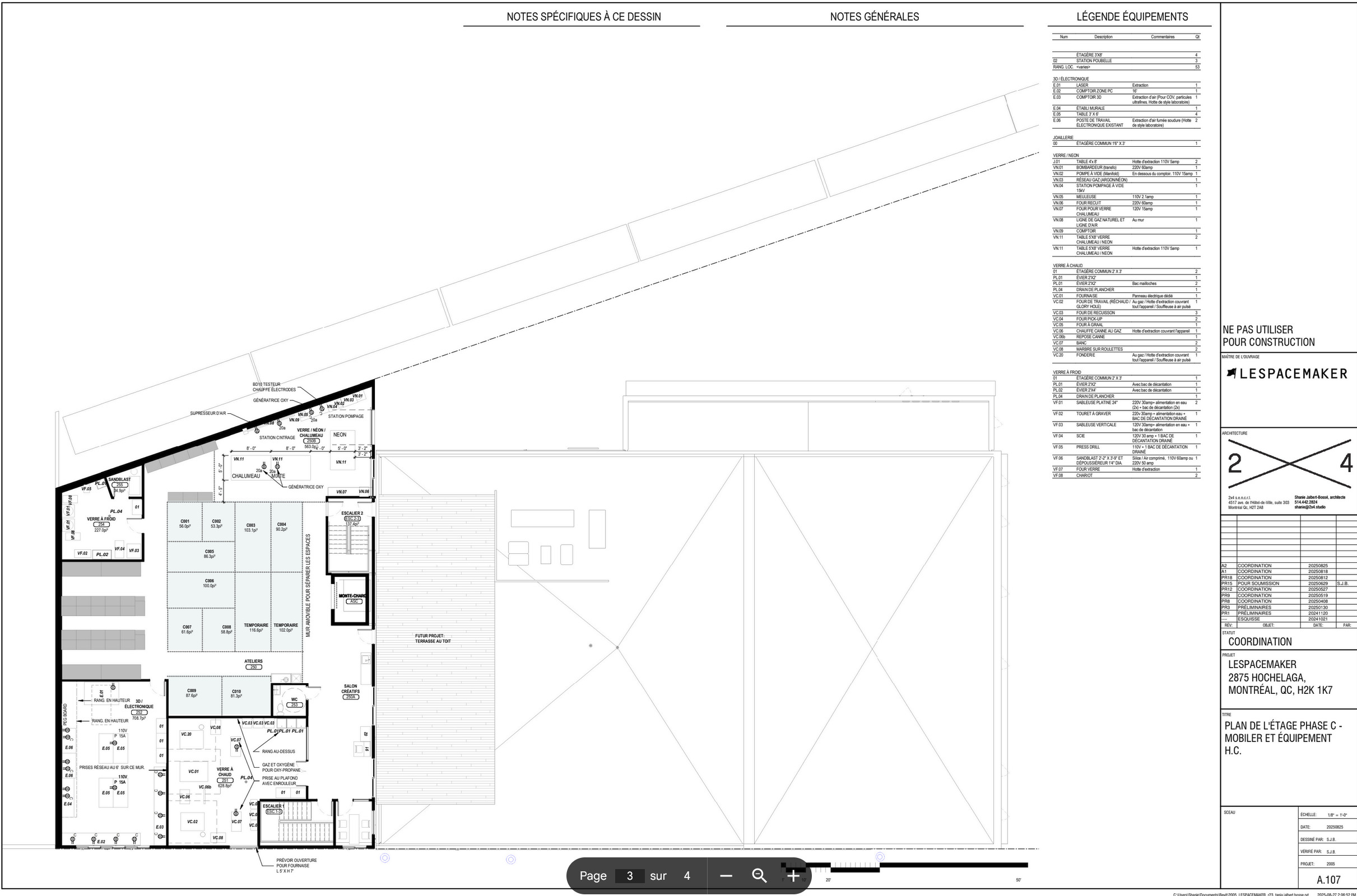
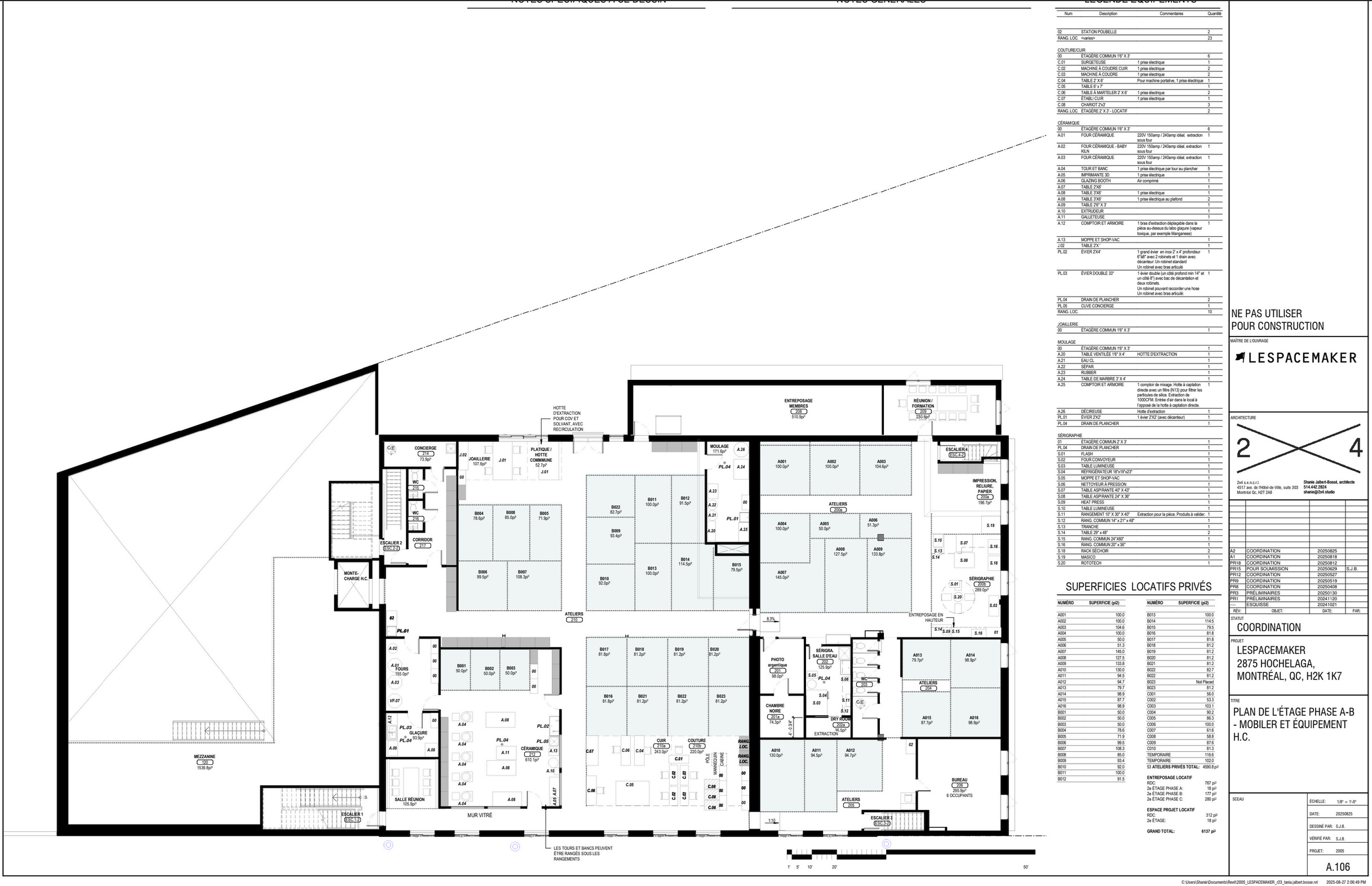
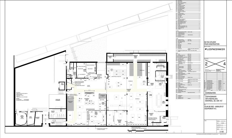
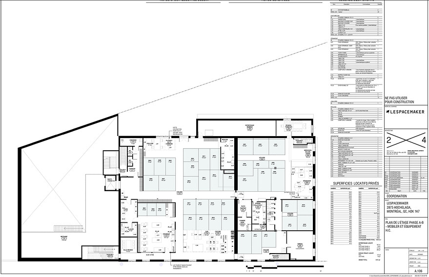
Démolition des bâtiments sans fondation, et agrandissement pour créer des ateliers d’artistes et d’artisans divers.
Informations
Nom:
Emplacement: 2875, rue Hochelaga
Hauteur: 2 étages
Architecte:
Promoteur: LESPACEMAKER
Début et fin de la construction:
Dates importantes:
- 2025-09-19 : Permis de démolition #3001877614
Autres informations:
Sources des informations:
Autres images
Localisation
4 Likes
Un coup de jeune pour cet édifice industriel, pour une OBNL qui va louer les espaces pour divers artisans et artistes.
1 Like
Je me demande si la compagnie de remorquage va déménager
Permis de démolition pour ce projet:
Démolition
ID Permis: 3001877614
Emplacement: 2875 rue Hochelaga
Nb logements: 0
Date émission: 2025-09-19
Bâtiment accessoire d’un étage (hangar sans fondation) de 798,9 m² en cour avant et latérale droite.
3 Likes
ChaacQC
5
elle a déjà déménagé ou est en processus
ChaacQC
6
2 Likes
Merci beaucoup pour le document 