J’ai passé sur Mansfield en voiture ce matin, et la façade crée une belle surprise. Vraiment une bonne idée d’avoir créer cette murale qui malgré ses couleurs vives, n’est pas criarde. Une belle addition au centre-ville et l’hôtel va faire grandement parlé de lui sur les réseaux sociaux avec ce nouvel élément.
Tous les passants s’arrêtent et regarde la murale, de plus, avec Destination Centre-ville l’hôtel offre ses toilettes publiques aux passants jusqu’à 21h. Un bon coup de visibilité pour Le Germain.
Ouverture prochaine d’un café dans l’immeuble voisin
Wow, c’est vraiment magnifique! Ca fait longtemps que je rêve que la ville fasse quelque chose de similaire sur les bâtiments en béton du village Shaughnessy.
La lumière dans tes photos font un résultat superbe. 
On devrait voir les côtés bientôt.
Aussi spectaculaire la nuit que le jour!
Matinal, 8 août
On le voit de très loin! Ça rend pas bien en photo (zoomée), mais être sur Clark et réaliser qu’on voit jusqu’à Mansfield, c’est quand-même cool. Et en faisant toute la piste cyclable sur P.-Kennedy on voit c’est vraiment une réussite.
Le Journal Métro a fait de petites entrevues avec des créateurs de murales, incluant la personne derrière celle du Germain, Michelle Hoogveld :
Oui, préfab gris, préfab gris pâle, préfab gris foncé, préfab gris craie. Quelle belle diversité !
tu as oublié: préfab sale!
Petit détail intéressant ! Cet édifice va gagner 2 étages, sans paraître. En effet, lors de l’agrandissement, deux niveaux dans l’extension ont été laissés sous forme de structure. Ces étages vont être complétés.
Dans le compte-rendu du CCU de décembre 2025:
CA_Vma_ODJ_LPP_ORDI_2026-02-10_18h30_FR.pdf
Dossier 3003618639
La demande concerne un édifice de style brutaliste construit en 1967 selon les plans de Rosen, Caruso, Vecsei Architectes. Il accueillait à l’origine le siège social de l’Ordre des ingénieurs du Québec avant d’être converti en hôtel en 1999 sous l’enseigne Le Germain. L’immeuble abrite actuellement 136 chambres, ainsi qu’un bar et un restaurant au 2e étage. En 2020, des travaux majeurs ont été réalisés, comprenant l’ajout d’un volume de six étages au-dessus du bâtiment existant et l’intégration d’un agrandissement en porte-à-faux au 2e étage, redéfinissant la volumétrie et marquant l’entrée principale. Depuis 2021, une murale colorée recouvre le bâtiment.
L’agrandissement en porte-à-faux au 2e étage fut autorisé via un projet particulier, soit la résolution CA19 240103, étant donné que l’avant-corps créé par rapport au plan de façade ne respectait pas les encadrements prévus au Règlement d’urbanisme (01-282).
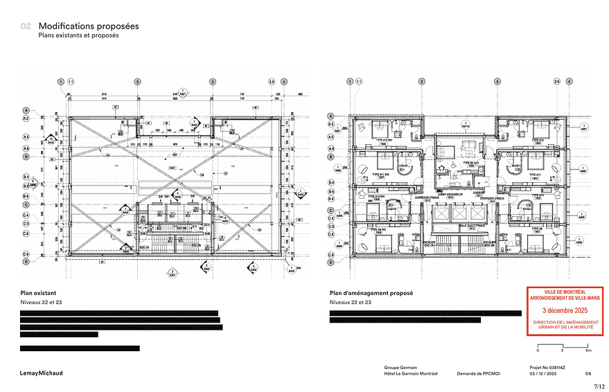
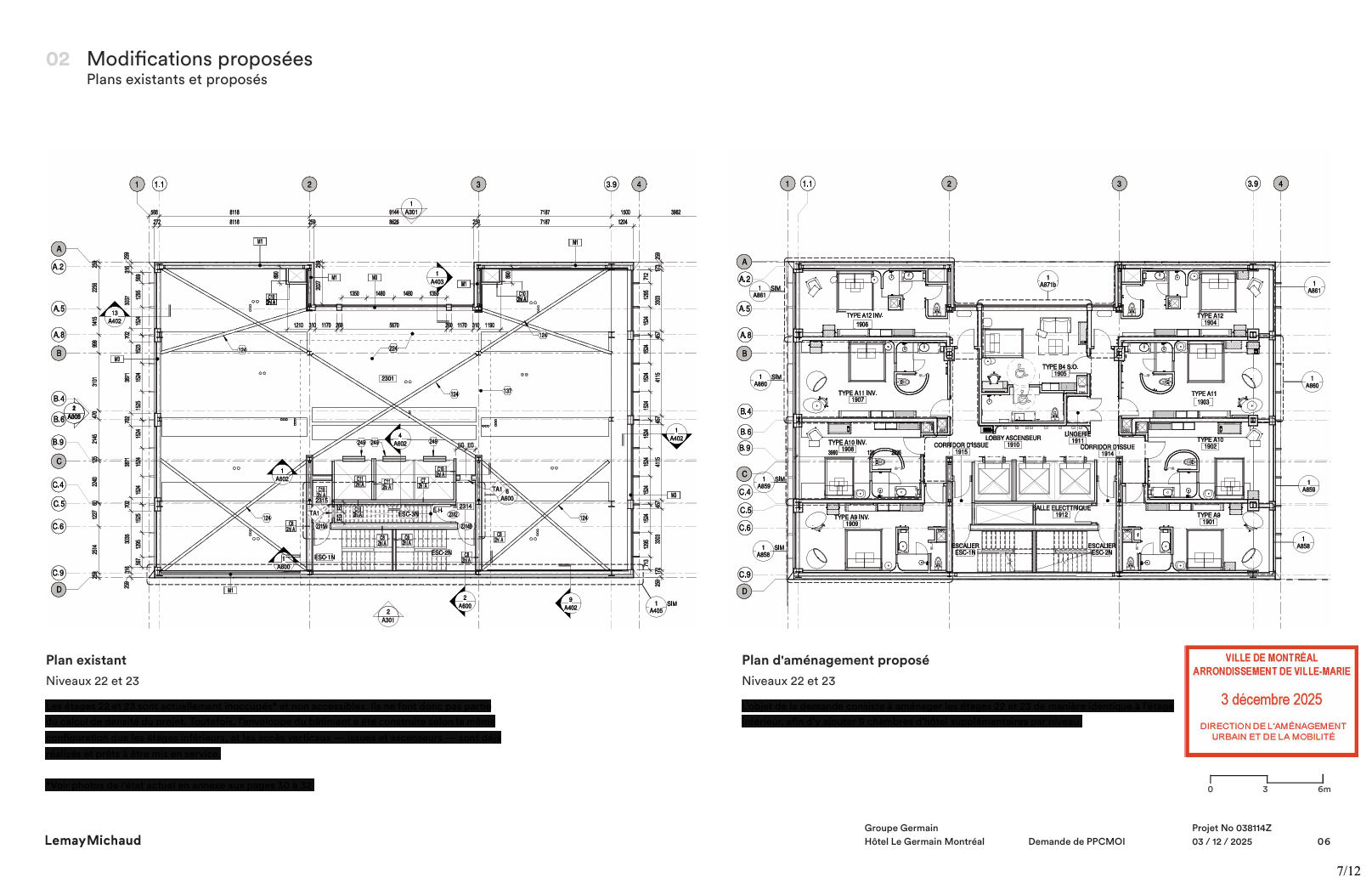
La demande vise à autoriser la modification du projet particulier de construction, de modification ou d’occupation d’un immeuble (PPCMOI) lié à la résolution CA19 240 103, afin d’autoriser, en plus des autorisations déjà accordées, une dérogation à la densité maximale de 12 prescrite au Règlement d’urbanisme (01-282). L’objectif est d’aménager deux niveaux supplémentaires à l’intérieur du volume existant, soit les niveaux 22 et 23, et ainsi ajouter 18 chambres au complexe hôtelier. La densité du site passerait ainsi de 11,7 à 13.
Les travaux ne comportent aucune modification extérieure. Lors des travaux majeurs d’agrandissement réalisés en 2020 (permis 3000750335 18), le volume de six étages ajoutés au sommet du bâtiment existant ne comportait en fait que quatre niveaux de plancher, soit du 17e au 21e étage. Les deux derniers niveaux, soit les 22e et 23e, ont été laissés à l’état de structure. Ces deux niveaux inachevés sont déjà desservis par des cages d’escalier et des ascenseurs. Leur réalisation avait été faite en prévision d’une acquisition de la ruelle arrière, laquelle aurait permis d’augmenter la superficie du terrain et, par conséquent, la superficie de plancher autorisé dans le respect de la densité fixée à 12. Toutefois, ce projet d’acquisition est en impasse depuis plusieurs années, empêchant la complétion des travaux.
Le projet déroge à l’article 43 du Règlement d’urbanisme (01-282) qui fixe la densité maximale à 12 pour ce secteur. La dérogation peut être autorisée dans le cadre d’un PPCMOI, conformément au Règlement (CA 24-011), si le projet présente une plus-value significative, notamment par sa contribution aux objectifs du PUM et des politiques municipales.
Par conséquent, à l’unanimité, le comité consultatif d’urbanisme émet un AVIS FAVORABLE à l’égard de cette demande à la condition suivante :
• le dépassement de la densité maximale prescrite est accordé exclusivement pour permettre la complétion des niveaux 22 et 23, tels qu’illustrés aux plans 6 et 7 préparés par Lemay Michaud, et ne peut être utilisé à d’autres fins d’agrandissement.
Point 40.17
Adopter une résolution modifiant la résolution CA19 240103 afin d’autoriser le dépassement de la densité maximale et d’ainsi permettre la complétion des niveaux 22 et 23 pour le bâtiment situé au 2050, rue Mansfield, conformément au Règlement sur les projets particuliers de construction, de modification ou d’occupation d’un immeuble - 2e projet de résolution
CA_Vma_ODJ_LPP_ORDI_2026-03-10_18h30_FR.pdf
Deuxième projet de résolution pour cet intéressant agrandissement dans un espace intérieur vide, il reste l’approbation ensuite.
Les modifications intérieures, où on peut voir le nouveaux étages:
À la fin de cet article de la Presse : Réglementation modifiée | Le site de la Molson pourrait accueillir jusqu’à 1000 logements de plus
Des étages vides finalement convertis
Face à l’impasse de son projet d’acquisition de la ruelle derrière son hôtel de la rue Mansfield, au centre-ville, le Groupe Germain avait dû renoncer à aménager les deux nouveaux étages de l’immeuble construit en 2020 puisqu’il était déjà trop dense en vertu des règlements de la Ville. Il pourra maintenant le faire puisque le conseil d’arrondissement, présidé par la mairesse, lui a octroyé une dérogation en vertu du nouveau PUM. Dix-huit chambres s’ajouteront ainsi aux 136 que compte déjà l’édifice à la façade colorée.















