Projet de démolition d’un ancien garage (Bougie Auto Électrique) et construction d’un centre de la petite enfance de 60 places (dont 10 poupons) situé au 2210 avenue Charland dans l’arrondissement Saint-Michel.
Informations
Nom: Centre de la petite enfance (CPE) Au Galop
Emplacement: 2210 avenue Charland, coin Parthenais
Hauteur: 2 étages - 7,94m
Architecte: AZ Architecte
Promoteur: CPE au Galop
Début et fin de la construction:
Dates importantes:
- 2025-06-13 : Permis de construction #3001846183
- 2024-10 : Démolition de l’ancien garage au 2210 avenue Charland
- 2023-07-30 : Vente du terrain, selon l’annonce Landerz retrouvée dans Google Cache (consulté en octobre 2023). Le coût au pied carré donne un prix demandé de 975 000$. Selon l’annonce, il serait possible de construire 18 logements de 1000 pc.
Autres informations:
- 60 places (dont 10 poupons)
Sources des informations:
- le compte-rendu du conseil d’arrondissement du 6 février 2024 de Villeray-Saint-Michel-Parc-Extension, mon furetage sur les interwebs et mes photos broche à foin
Autres images
Localisation - Janvier 2024
1 « J'aime »
Les trois photos supplémentaires ont été prises hier soir.
On y voit clairement de l’excavation dans le but de décontaminer le terrain.
Selon le ministère de l’environnement, on est en présence des contaminants suivants:
Hydrocarbures aromatiques monocycliques * (seringue), Hydrocarbures aromatiques polycycliques*, Hydrocarbures pétroliers C10 à C50 (après tout, c’était une station service aussi).
Par ailleurs, mon fouinage m’a amené à explorer la ruelle à côté:
Il y a clairement un grand potentiel de verdissement de ruelle (en tout ou en partie).
Sur toute la longueur, je n’ai vu qu’une seule voiture stationnée dans la cour d’un immeuble (un Journey enseveli sous la neige). Évidemment, les riverains devraient procéder à un référendum, mais ça serait tout à leur avantage.
4 « J'aime »
Le rôle foncier de Montréal confirme les informations relatives au nouveau propriétaire:
Extrait du rôle d’évaluation foncière
Municipalité de Montréal
En vigueur pour les exercices financiers 2023-2024-2025
1. Identification de l’unité d’évaluation
| Adresse : |
Avenue Charland, LOT |
| Arrondissement : |
Arrondissement de Villeray - Saint-Michel - Parc-Extension |
| Numéro de lot : |
1743477 |
| Numéro de matricule : |
9347-86-0674-7-000-0000 |
| Utilisation prédominante : |
Espace de terrain non aménagé et non exploité (excluant l’exploitation non commerciale de la forêt) |
| Numéro d’unité de voisinage : |
3336 |
| Numéro de compte foncier : |
30 - F71407600 |
2. Propriétaire
| Nom : |
CENTRE DE LA PETITE ENFANCE AU GALOP INC |
| Statut aux fins d’imposition scolaire : |
Personne morale |
| Adresse postale : |
4300 JEAN-RIVARD , MONTREAL QUEBEC, H1Z 2A8 |
| Date d’inscription au rôle : |
2022-09-20 |
3. Caractéristiques de l’unité d’évaluation
Caractéristiques du terrain
Mesure frontale : 23,77 m
Superficie : 724,60 m2
4. Valeurs au rôle d’évaluation
Rôle courant
Date de référence au marché : 2021-07-01
Valeur du terrain : 355 100 $
Valeur du bâtiment : 0 $
Valeur de l’immeuble : 355 100 $
Rôle antérieur
Date de référence au marché : 2018-07-01
Valeur de l’immeuble au rôle antérieur : 391 800 $
5. Répartition fiscale
Catégorie et classe d’immeuble à des fins d’application
des taux de taxation : Terrain vague desservi
Valeur imposable de l’immeuble : 355 100 $ Valeur non imposable de l’immeuble : 0 $
Donc l’excavatrice n’est plus sur les lieux, et à la place git un magnifique trou:
Le site du Ministère de l’environnement indique que le terrain est encore contaminé, mais c’est peut-être le temps que les tests soient effectués à nouveau.
En consultant le compte rendu de la Séance ordinaire du conseil d’arrondissement du mardi 6 février 2024, on trouve la pépite suivante:

-
ce projet s’aligne parfaitement avec le nouveau propriétaire (CPE au Galop)

-
non, ce n’est pas le lac du parc à côté…
2 « J'aime »
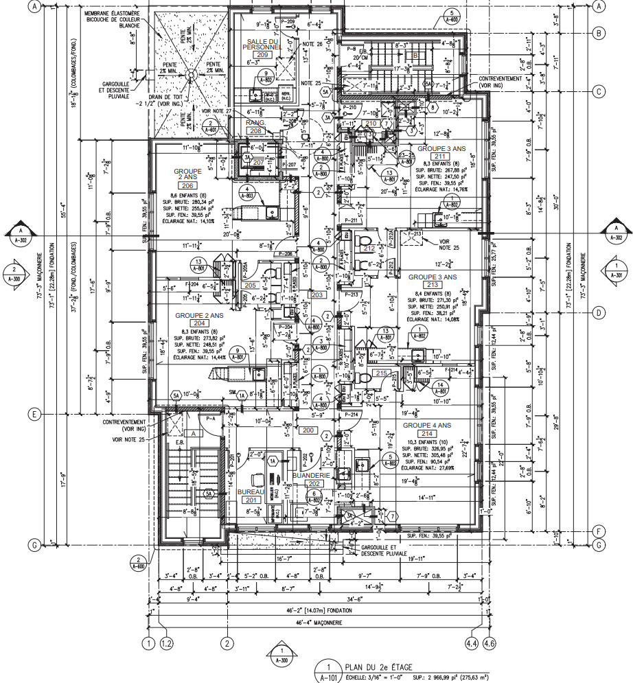
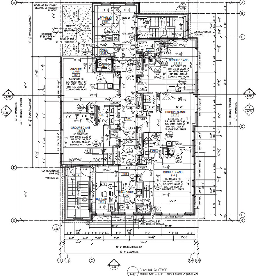
En complément des modifications au Wiki, j’ajoute ici les dessins de l’architecte pour les plans des étages:



Le comité de l’urbanisme recommande d’ajouter l’implantation d’un support à vélo.
C’est sûrement dans le but d’initier les jeunes aux matchs pugilistiques à 16h 
Aussi, c’est dommage pour la perte du troisième étage, qui aurait pu accommoder 3 grands logements de 1000 pieds carrés. J’ai comme l’impression que le CPE a peur de recevoir des plaintes du genre “vOs MoRvEuX pLeUrEnT tOuT lE tEmPs, Je VoUs EnVoIe UnE mIsE eN dEmEuRe”
Adopter le Règlement RCA24-14001 intitulé « Règlement sur la construction d’un bâtiment et son occupation à des fins de garderie sur la propriété située au 2210, rue Charland ».
Adoption du règlement pour la construction du CPE la semaine prochaine
2 « J'aime »
En attendant le procès-verbal du conseil d’arrondissement du 12 mars, j’ai pris cette photo du terrain du futur CPE.
Les clôtures sont enlevées et le trou semble est recouvert de sable (Charland beach?).
Concernant la décontamination, le site web d’Environnement Québec ne semble pas avoir été mis à jour.
1 « J'aime »
J’ai grandi sur cette ruelle. La circulation automobile y était si faible qu’elle servait souvent d’extension de cours pour jouer avec les voisins. À mon souvenir, il n’y a que 2-3 maisons qui ont des garages attenants à la ruelle et ils sont principalement au nord du bloc (près de Charland).
Comme les boyaux d’arrosage des résidences donnent principalement sur la cours, la ruelle est parfois utilisée par les résidents pour laver leurs voitures. Il faudra probablement maintenir l’accès pour ces usages périodiques. Autrement, je pense qu’il y aura très peu d’opposition à son verdissement.
Le règlement RCA24-14001 pour l’autorisation de la construction et de l’opération d’un CPE sur deux étages a été adopté le 13 mars:
https://montreal.ca/reglements-municipaux/recherche/65f08084f1c2f151e36fbbe8
Le projet va aller de l’avant, c’est un bel ajout pour le secteur.
P.S. j’ai enlevé le post sur le garage d’à côté, car j’ai récemment vu de l’activité (ie des véhicules sur des lifts), donc je crois qu’il continue son opération, juste sans pancarte.
1 « J'aime »
2024-05-13 - Sur la page de AZ Architecte
3 « J'aime »
8 mois plus tard, et aucun changement.
Sur le site du Ministère de l’environnement, on indique que la décontamination n’est toujours pas complétée.
On surveillera ce qui se dira au prochain conseil d’arrondissement, mais c’est étrange que ça bloque à ce stade là.
J’aimerais bien savoir quelle est la différence entre le règlement RCA24-14001 de mars 2024 et ce nouveau dossier municipal de mai 2025.
Si je comprends bien, en lisant les cartouches des dessins d’architecte, c’est que la soumission de mars 2024, c’était des esquisses préliminaires?
En tout cas, les nouveaux dessins semblent pas mal plus complets, à en voir celui du 2e étage:
Je crois que le premier règlement était pour autoriser l’occupation par une garderie de l’édifice entier, avec des dispositions spécifiques pour cet usage dans la loi. J’imagine que faire une garderie de 2 étages n’était pas de plein droit.
Le PIIA est pour la construction comme telle.
1 « J'aime »
Début du coffrage des fondations.
2 « J'aime »
On dirait bien qu’il n’y aura pas de sous-sol.
Ça correpond aux plans publiés, mais ça aurait quand même permis de l’entreposage supplémentaire.
3 « J'aime »
La structure de bois est en place. J’ai vu rapidement pas de photo