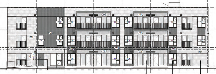
Projet de 26 logements sociaux modulaires sur trois étages réalisé en remplacement d’une maison unifamiliale construite en 1951 et acquise par la Ville de Montréal en 2021 grâce au droit de préemption.
Informations
Nom:
Emplacement: 7965, boulevard de l’Acadie - lots 2 245 623, 2 245 625 et 2 245 626 (lot projeté 6 707 435)
Hauteur: 3 étages
Architecte : Lemay
Promoteur: Coopérative d’habitation Monde-Uni
Début et fin de la construction:
Dates importantes:
- 2026-01-14 : Approbation de l’acte de vente
- 2026-02-03 : Approbation des plans (PIIA)
- 2026-02-13 : Permis de démolition #3001909084
Autres informations:
- 26 logements sociaux
Sources des informations:






