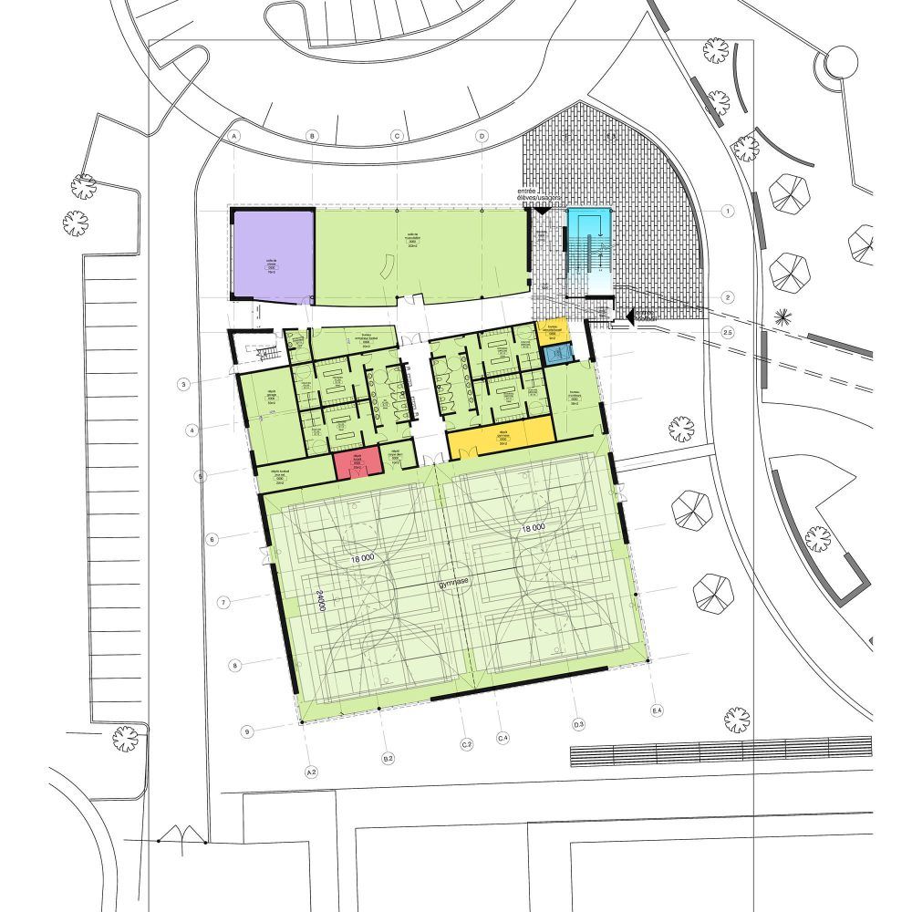
En effet, l’augmentation du nombre d’élèves au fil des ans ainsi que le développement des activités sportives au niveau scolaire et parascolaire ont entraîné la nécessité de construire un deuxième gymnase double sur le site. Le Collège Mont-Saint-Louis a ainsi profité de cette opportunité pour créer un pavillon multifonctionnel et ouvert sur la communauté.
Informations
Nom: Collège Mont-Saint-Louis – Pavillon multifonctionnel
Emplacement: 1700 Boul Henri-Bourassa E, Montréal, QC H2C 1J3
Hauteur: 3 ÉTAGES
Architecte: Provencher Roy
Promoteur: Collège Mont Saint-Louis
Début et fin de la construction: XX/2017N
Dates importantes:
Autres informations:
- 6 Salles de classe
- Gymnase double
- 4 Vestiaires
Sources des informations:
Collège Mont-Saint-Louis - Pavillon multifonctionnel - Provencher_Roy | Architecture - Design - Urbanisme - Paysage








