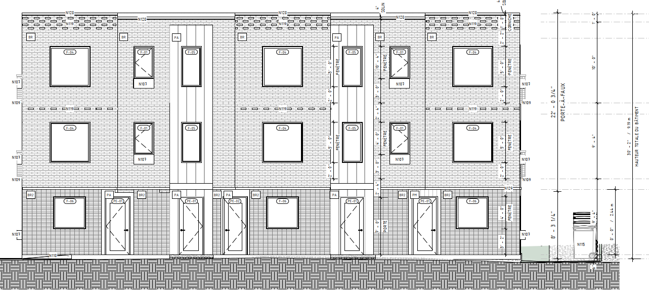
La démolition d’une maison trifamiale abandonnée pour construire une habitation multifamiliale de structure isolée comportant 9 logements.
Informations
Nom:
Emplacement:
- 850-858, boulevard Curé-Poirier Ouest
- 1926-1930, rue Marmier
Hauteur: 3 étages
Architecte:
Promoteur: Cigale Construction
Début et fin de la construction:
Dates importantes: - 2025-11-24 : Dérogation mineure et PIIA
Autres informations:
- 8 logements
Sources des informations:









