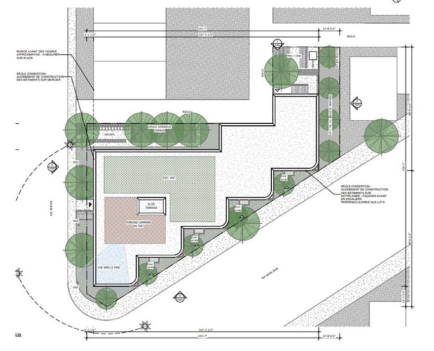
8477 Notre-Dame Est - 4 étages

Projet mixte de 64 logements réalisé en remplacement d’un immeuble commercial (Tavene Rancho).

Informations

Nom:
Emplacement: 8473-8477, rue Notre-Dame Est
Hauteur: 4 étages - 16 mètres
Architecte:
Promoteur:
Début et fin de la construction:
Dates importantes:

  • 2025-09-08 : Adoption du premier projet de résolution (PPCMOI)

Autres informations:

  • 64 logements
  • 1 local commercial

Sources des informations:

Autres images

7 « J'aime »

12 « J'aime »

Wow, ce serait très beau et parfaitement en accord avec les autres bâtiments sur cette portion de Notre-Dame.

Ces arrondis devraient séduire @jacouzi.

1 « J'aime »

40.05 Adopter le second projet de résolution du projet particulier PP27-0355 en vue de permettre la démolition du bâtiment situé aux 8473-8477, rue Notre-Dame Est et la construction d’un bâtiment résidentiel - 1255092004. (2e lecture de 3)

Deuxième lecture pour ce projet.

1 « J'aime »

9 « J'aime »

40.06 Adopter la résolution autorisant le projet particulier PP27-0355 en vue de permettre la démolition du bâtiment situé aux 8473-8477, rue Notre Dame Est et la construction d’un bâtiment résidentiel - 1255092004. (3e lecture de 3).

Dernière lecture du projet, c’est donc son approbation.

Le projet est à vendre.

5 « J'aime »