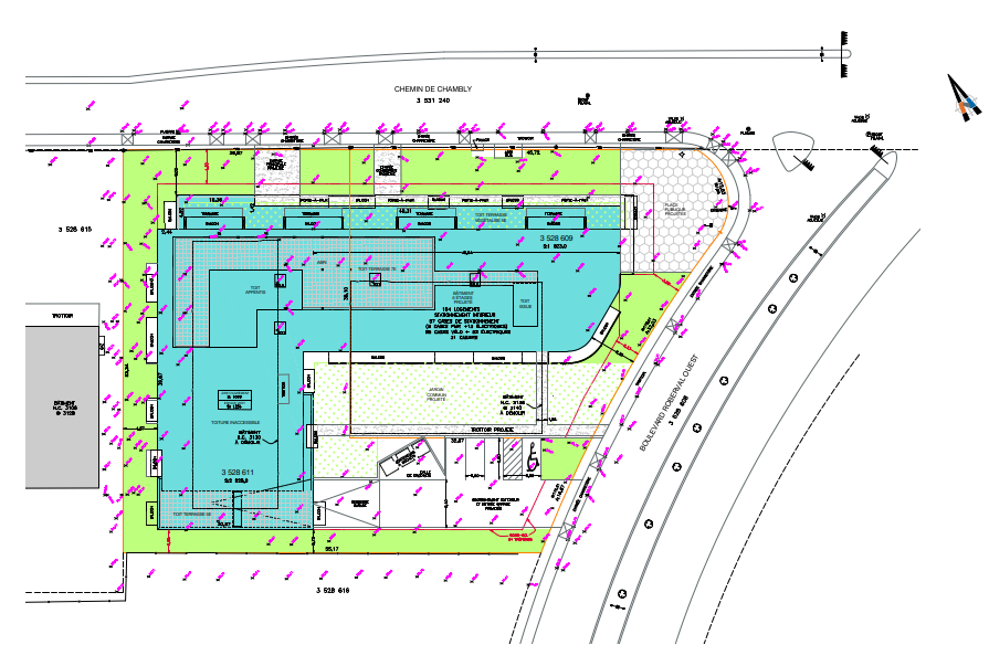
Projet mixte de 104 logements réalisé en remplacement de deux immeubles commerciaux.
Informations
Nom:
Emplacement: 3130-3140, chemin de Chambly - lots 3 528 609 et 3 528 611 (futur lot 6 702 274)
Hauteur: 6 étages
Architecte:
Promoteur: Habitations Atlas (Atimco)
Début et fin de la construction:
Dates importantes:
- 2025-10-01 : Adoption de la première résolution (article 93)
Autres informations:
- 104 logements
Sources des informations:



