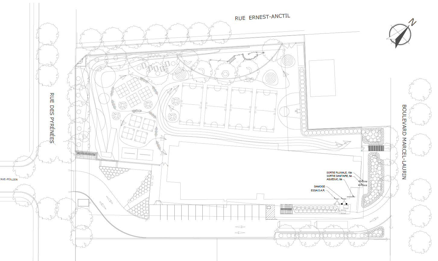
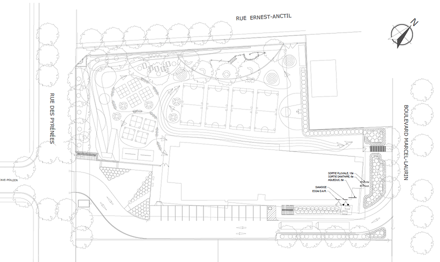
Projet d’école primaire à Bois-Franc.
Informations
Nom:
Emplacement: 2375, rue des Pyrénées
Hauteur: 4 étages (+ 1 salle mécanique au dessus)
Architecte: Héloïse Thibodeau Architecte
Promoteur: Centre de services scolaire Marguerite-Bourgeoys (CSSMB)
Début et fin de la construction:
Dates importantes:
Autres informations:
Sources des informations:

