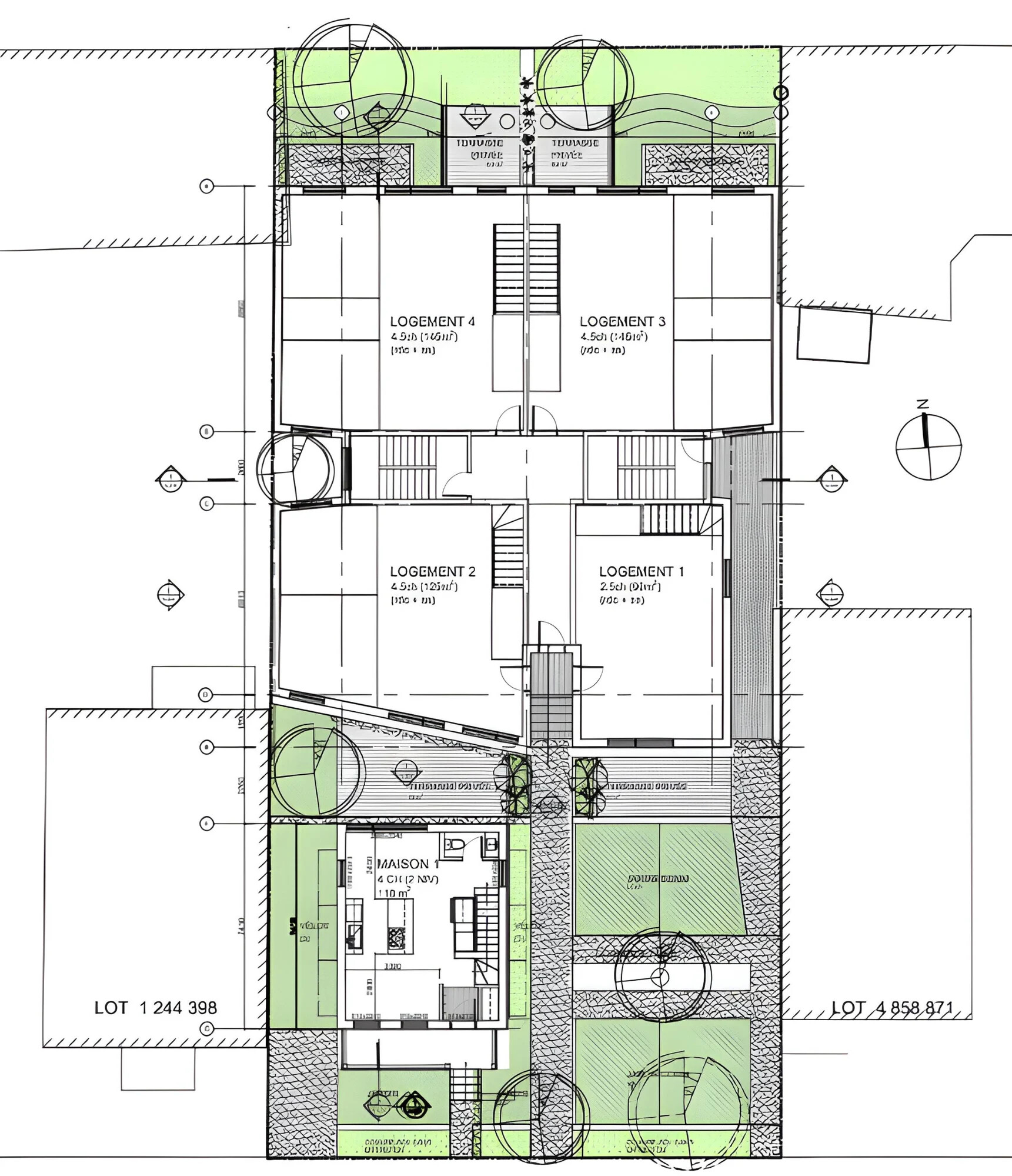
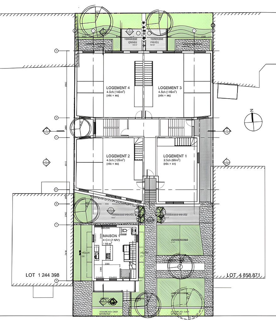
Projet à vendre de 12 logements et comprenant la reconstruction d’une maison construite en 1890.
Informations
Nom:
Emplacement: 1871, rue Galt
Hauteur: 3 étages
Architecte:
Promoteur:
Début et fin de la construction:
Dates importantes:
Autres informations:
- 12 logements
- 1 maison de 6 chambres
Sources des informations:

