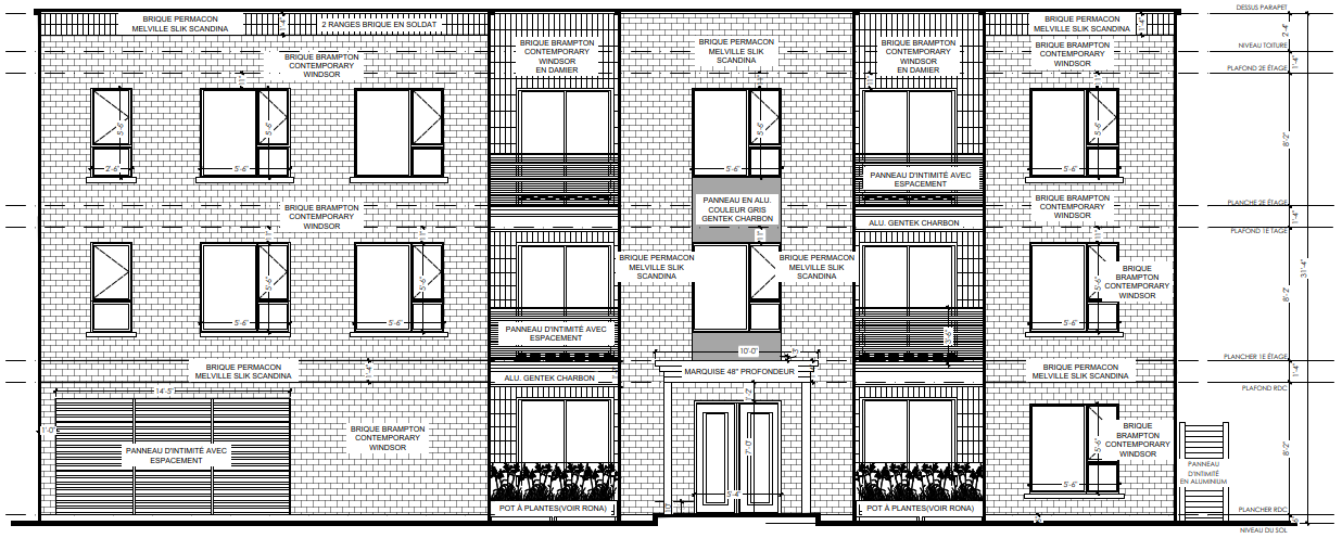
Projet de 6 logements réalisé en remplacement d’un immeuble commercial.
Informations
Nom:
Emplacement: 1701, rue Joliette
Hauteur: 3 étages
Architecte:
Promoteur: Habitations de luxe
Début et fin de la construction:
Dates importantes:
- 2025-11-24 : Dérogation mineure et PIIA
Autres informations:
- 8 logements
Sources des informations:

