Réseau cyclable montréalais - Discussion générale

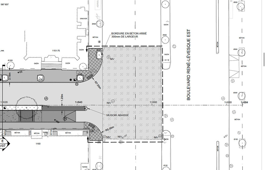
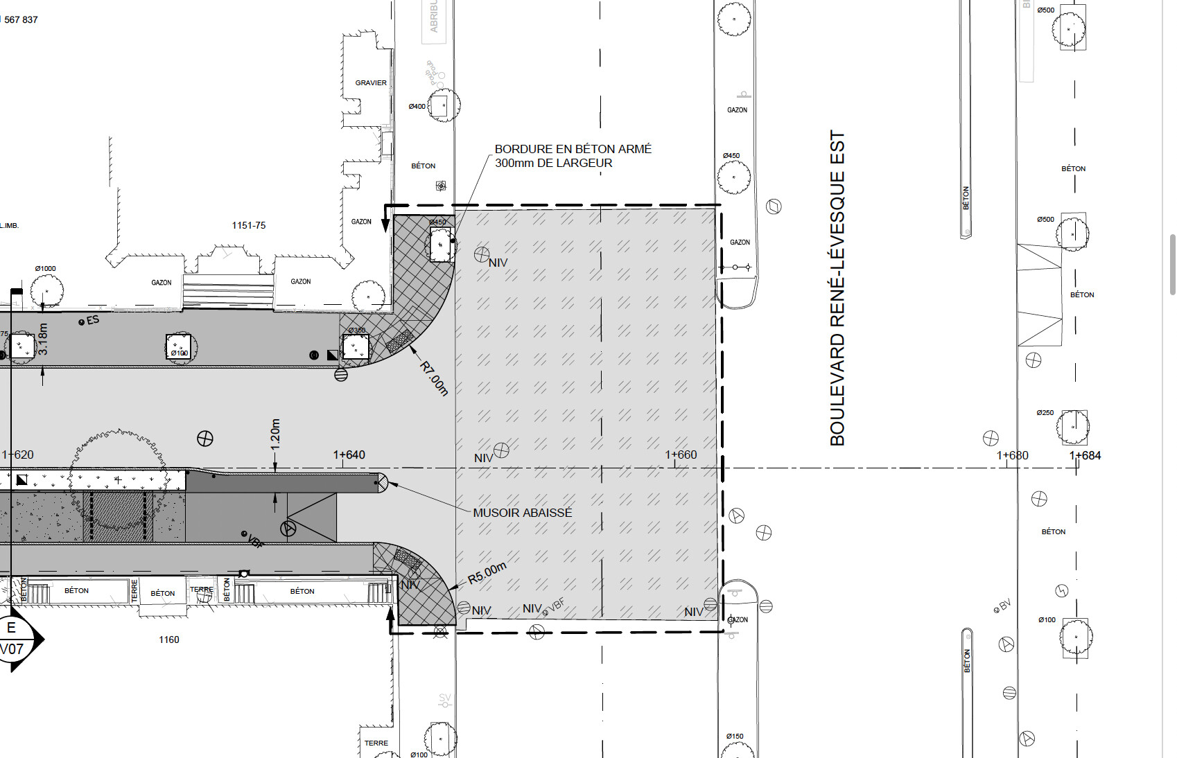
Première piste cyclable de l’ère Martinez. Je ne sais pas si on peut le leur attribuer puisque c’est le petit bout manquant sur De Champlain entre Sainte-Catherine E. et René-Lévesque.

J’imagine ils doivent être super stressés avec ce projet qui sauve des vies et qui verdi une rue qui en a tant besoin…

Plantation d’arbres et retraits de stationnements.

Marquage :

Coupe transversale :

Je ne vois pas de quoi (feux de circulation) qui est rajouté pour se connecter comme il faut à la piste sur R-L de l’autre côté du boulevard. C’est littéralement envoyer les gens à vélo dans la gueule du loup…

9 Likes

Ou p-e que c’est pcq ce bout mène directement à la Maison Radio-Canada et bcp de journalistes, animatrices et animateurs font du vélo et du vélo d’hiver…et SMF ne veut pas les avoir à dos :wink:

En même temps, ce sont des travaux d’infrastructures souterraines. Les plans étaient sûrement dessinés depuis longtemps

DRE-P2605-200354-C /20125756

Travaux de conduites d’eau principales et secondaires, d’égout, de voirie, de massifs de la CSEM et Bell-Canada dans la rue de Champlain, entre la rue Sainte-Catherine Est et le boulevard René-Lévesque

Normalement les feux sont sur le plan de marquage ET signalisation. Là il ya juste un plan de marquage :thinking:

4 Likes

Dommage que tu arrives sur René-Lévesque direct dans le trafic sans piste.

Ça prend définitivement une piste bidirectionnelle protégée sur RL de Notre-Dame jusqu’à Greene.

Il y a l’espace pour.

3 Likes

Tu dis ! De l’espace il y en a sans bon sens. C’est une aberration cette rue. Quand je passe en auto, je ne peux qu’adminirer à quel point c’est de l’overkill d’avoir 5-6 voies de large de chaque bord.

4 Likes

Dans la dernière phase terminée à l’automne, le nouveau feux de circulation coin Maisonneuve a été installée par la Ville après la fin des travaux (séparément du contrat). C’est peut-être ce qui est prévu ici, mais il faudrait vérifier.

7 Likes

Pour les feux non rajoutés, c’est peux être parce qu’il y a déjà des feux aux coins des rues A.-De-Sève et Papineau ! Il n’y a pas une règle de ne pas mettre des feux trop proche ?

Mais oui, les cyclicles qui fonce dans le traffic est une abberation !

À ma connaissance, il n’y a pas de distances minimales entre 2 feux, comme pour un arrêt, ce sont d’autres critères. Entre autres, la norme 8.5.1.4. du Tome V mentionne que la sécurité peut être une justification:

« une étude de sécurité démontre que l’intersection à l’étude présente un problème de sécurité routière lié à la fréquence des accidents, la gravité ou une proportion anormale de certains types d’accidents et que l’installation de feux de circulation permettrait de corriger cette situation problématique »

À noter que cette norme est normative et non réglementaire, donc si un ingénieur approuve l’installation elle peut déroger à la norme.

3 Likes

Il y a 95 mètres. Mais de ce que j’avais entendu dire, cette règle n’est pas immuable.

Toute la vidéo d’Urbania sur le vélo d’hiver est sur YouTube

Tour d’horizon du vélo d’hiver

Depuis quelques années, rouler en vélo l’hiver ne relève plus de la marginalité héroïque. Pour sa communauté, c’est devenu une forme de fierté collective.

:bicycle: :snowflake: Dans le Micromag de ce week-end, Jean Bourbeau est allé à la rencontre de citoyens à leur premier ou à leur douzième hiver sur deux roues. Pourquoi ils roulent. Ce que ça transforme dans leur rapport au froid, au travail, à la ville. Il aussi tendu le micro à des chercheurs, à des militants, et à des élus pour qui le vélo est devenu un marqueur politique depuis les dernières municipales.

Pour le Micromag complet :backhand_index_pointing_right: Vélo sous zéro | Micromag URBANIA

Chapitres
00:57 Les défis : Cohabitation avec les automobilistes et préjugé
01:22 Sécurité et équipements : Apprendre de ses chutes
01:52 Briser les mythes : Qui sont vraiment les cyclistes d’hiver ?
02:16 L’importance des infrastructures protégées
02:49 De la “guerrière hivernale” à la démocratisation
03:05 Le phénomène du “Bike Lash” et l’évolution des mentalités
03:54 Déneigement : La priorité aux pistes cyclables ?
05:03 Parole politique : Soraya Martinez Ferrada et l’avenir du réseau
06:21 Qualité de vie et bénéfices pour la santé mentale
06:56 Inclusion et disparités entre les quartiers
08:40 L’explosion du service BIXI à l’année
09:22 Une expérience de vie au-delà de l’utilitaire
11:06 Conclusion : Apprivoiser l’hiver un coup de pédale à la fois

8 Likes

J’étais curieux d’avoir les documents ou analyses existants pour le choix des pistes cyclables dans l’audit de la ville de Montréal.

J’ai donc fait une demande d’accès à l’information. Malheureusement :

… nous avons le regret de vous informer qu’aucun document n’a été retracé par le Service de l’urbanisme et de la mobilité de la Ville.

J’ai demandé les analyses, compilation des plaintes du 311, etc., bref ce qui était mentionné dans l’annonce. Visiblement, le Service de l’Urbanisme et de la mobilité n’a pas produit de documents pour faire le choix de ces pistes.

Sinon, juste une photo d’aujourd’hui d’une énième voiture qui fait son virage Bellechasse/Saint-Laurent dans la piste cyclable, et sur sa rouge. Je passe par là pendant un gros 30 secondes de temps en temps, et j’ai vu cela plusieurs fois. Dans l’espoir que l’audit sécurise cela.

14 Likes

Une voiture Communauto en plus :upside_down_face:

Longtemps entre cycliste on se disait que les taxis étaient les véhicules les plus dangereux pour nous, mais dans les dernières années, avec la popularité croissante de ce service, j’ai eu beaucoup trop de situations dangereuses impliquant des véhicules Communauto.

3 Likes

Personnellement, mon classement de véhicules auxquels je fais le plus attention, c’est uber - communauto - touristes - banlieusards dans le secteur du pont Jacques-Cartier le soir - livreurs - taxis - général.

La quantité de uber qui passent proche de me frapper est hallucinante, car ils s’arrêtent souvent brusquement sur les pistes cyclables, tandis que les taxis sont un peu plus respecteux de ça.

D’ailleurs à cette intersection, je me suis souvent fait klaxonner par des automobilistes qui ne comprennent pas les déplacements cyclistes.

5 Likes

Lors de la création de cet aménagement en 2015, il y avait un marquage au sol plus conséquent (flèche, pictogramme, mâcle), des éléments qui n’ont jamais été renouvelés depuis, et qui ont donc entièrement disparu au bout de 4 ans. Seules les lignes sont refaites.

(En haut, 2016, un an après l’aménagement, en bas, 2024, dernière vue Street View disponible.)

4 Likes

J’étais là ce weekend et je peux confirmer que le marquage n’a pas été refait. En général, Bellechasse est le REV le moins aimé par la Ville. L’année dernière, on n’a remis les bollards qu’en juillet.

1 Like

Questions’ : est-ce normal que les bollards de protection du ReV bellechasse en direction Ouest aient disparues ? Ou est-ce qu’ils ne sont présents qu’en direction Est ? Je ne m’en rappel plus.

Me semble que c’est comme ça à chaque hiver dans ce coin, mais je peux me tromper.

Oui, ce sont retirés pour l’hiver

Ok merci. Je n’étais plus certains.

L’audit est surtout pour la piste en face du centre Bellechasse, sur Bellechasse.