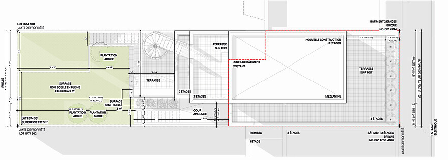
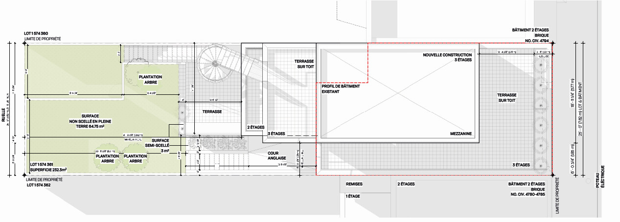
Duplex réalisé en remplacement d’un triplex construit en 1900.
Informations
Nom:
Emplacement: 4786-4790, avenue Palm - Lot 1 574 361
Hauteur: 3 étages + mezzanine
Architecte:
Promoteur:
Début et fin de la construction:
Dates importantes:
- 2026-03-12 : Comité de démolition
Autres informations:
- 2 logements
Sources des informations:


